Beschreibung
    Dieses charmante Mehrfamilienhaus aus dem Jahr 1898 befindet sich in attraktiver Innenstadtlage von Bayreuth und bietet mit einer Wohnfläche von ca. 511,55 m² auf einem ca. 380 m² großen Grundstück eine solide Grundlage für Investoren mit Blick für Bestandsimmobilien.
Die Immobilie umfasst vier Wohneinheiten, von denen aktuell zwei vermietet sind. Dadurch ist ein stabiler Ertrag gesichert, während die leerstehenden Einheiten – Raum für individuelle Gestaltung oder neue Vermietung lässt.
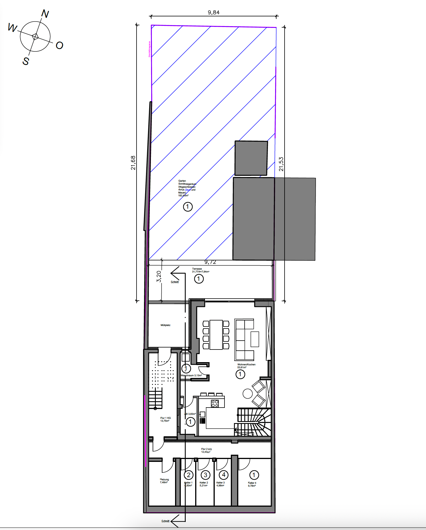
Besonders hervorzuheben ist das Erdgeschoss mit eigenem Garten und Terrasse – eine begehrte Wohnlösung in urbaner Lage. Die Substanz des Hauses zeigt sich gepflegt, mit klassischer Altbauarchitektur und großzügigem Grundriss.
Die monatlichen Mieteinnahmen aus den vermieteten Einheiten belaufen sich derzeit auf 1.080 €, womit sich bereits jetzt ein solider Einstieg in ein renditestarkes Investment ergibt.
Dieses Mehrfamilienhaus überzeugt durch seine zentrale Lage, die bereits bestehende Vermietungssituation und das Potenzial im Bestand. Eine attraktive Gelegenheit für Investoren, die den Wert und die Chancen gepflegter Altbauten zu schätzen wissen.
Galerie
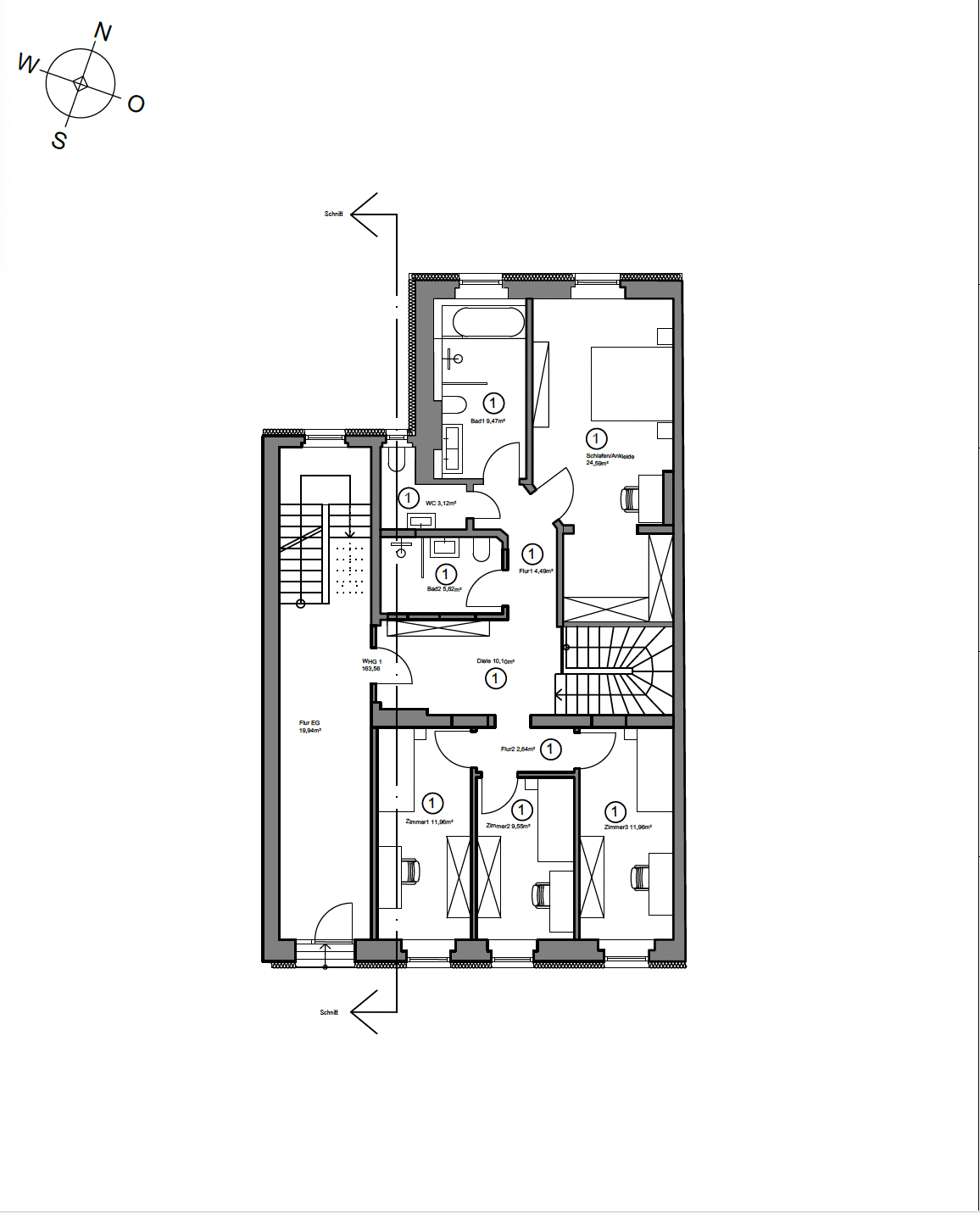
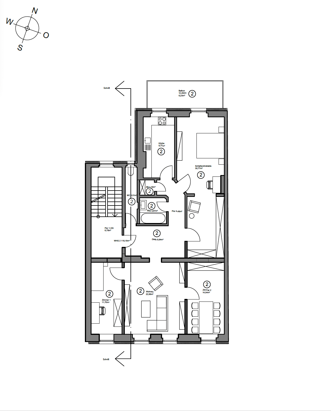
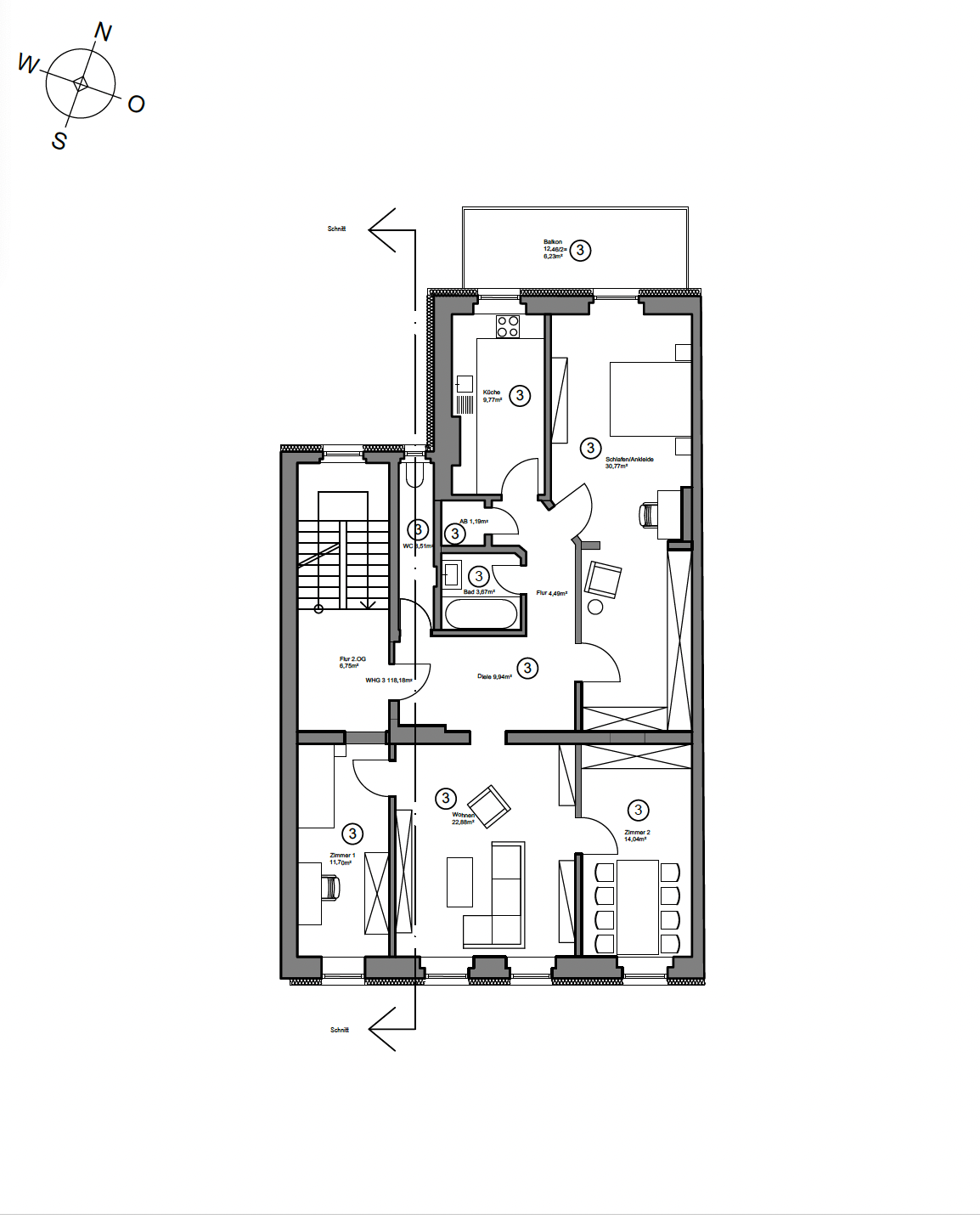
Grundriss
Lage
    Die Erlangerstraße 34 liegt in einer der gefragtesten Innenstadtlagen Bayreuths. Mit ihrer direkten Anbindung an das Stadtzentrum profitieren Bewohner von kurzen Wegen zu Einkaufsmöglichkeiten, Cafés, Restaurants sowie kulturellen Einrichtungen wie dem Markgräflichen Opernhaus oder dem Festspielhaus.
Die Umgebung ist geprägt von einer charmanten Mischung aus historischer Bausubstanz und modernen Wohngebäuden – ein urbanes Viertel mit Charakter. Auch der tägliche Bedarf ist fußläufig abgedeckt: Supermärkte, Apotheken, Banken und Dienstleister befinden sich in direkter Nähe.
Die hervorragende Verkehrsanbindung durch den ÖPNV sowie die Nähe zur Universität Bayreuth machen den Standort besonders attraktiv für Berufstätige, Studierende und urbane Familien. Grünflächen in der Umgebung sorgen zusätzlich für Lebensqualität und laden zur Erholung ein.
Ein Standort, der Urbanität, Infrastruktur und Lebensqualität ideal vereint – mitten in Bayreuth.
            Datentabelle
Objekt
                                    Titel:
                                
                                
                                    Altbauperle im Herzen Bayreuths – 4 Einheiten mit Charakter
                                
                            
                                    Adresse:
                                
                                
                                    Erlanger Straße 34, 95444 Bayreuth
                                
                            
                                    Ort:
                                
                                
                                    Bayreuth
                                
                            
                                    Zustand:
                                
                                
                                    renovierungsbedürftig
                                
                            
                                    Baujahr:
                                
                                
                                    1898
                                
                            
                                    Bezugsfrei ab:
                                
                                
                                    nach Vereinbarung
                                
                            Kosten
                                    Heizkosten inkl.:
                                
                                
                                    Nein
                                
                            
                                    Kaufpreis:
                                
                                
                                    957.000 €
                                
                            Flächen & Räume
                                    Wohnfläche:
                                
                                
                                    511,6 m²
                                
                            
                                    Zimmer:
                                
                                
                                    17
                                
                            
                                    Badezimmer:
                                
                                
                                    4
                                
                            Energie
                                    Energieeffizienz:
                                
                                
                                    D
                                
                            
                                    Endenergiebedarf:
                                
                                
                                    234,6 kWh/(m²·a)
                                
                            
                                    Energieausweistyp:
                                
                                
                                    Bedarfsausweis
                                
                            
                                    Ausweis gültig bis:
                                
                                
                                    19.03.2025
                                
                            
                                    Heizungsart:
                                
                                
                                    Etagenheizung
                                
                            
                                    Warmwasser enthalten:
                                
                                
                                    Ja
                                
                            Ausstattung
                                    Einbauküche:
                                
                                
                                    Nein
                                
                            
                                    Garten / -mitbenutzung:
                                
                                
                                    Ja
                                
                            
                                    Barrierefrei:
                                
                                
                                    Nein
                                
                            
                                    WG-geeignet:
                                
                                
                                    Nein
                                
                            Direktanfrage
Diese Immobilie und keine andere?
Rufen Sie uns an oder schreiben Sie uns! Wir freuen uns über Ihre Nachricht.
Ihr Ansprechpartner
Peter Vogt
 
            Geschäftsführer
Telefon: 0921 5070370
E-Mail: office@peter-vogt.com
Vogt Immobilien GmbH
Ludwigstraße 16
95444 Bayreuth
 
                                                    
                             
                                 
                                 
                                 
                                 
                                 
                                 
                                 
                                 
                                 
                                 
                                 
                                 
                                 
                                 
                                 
                                 
                                 
                                 
                                 
                             
                             
                             
                             
                            